Ontdek de ruimtes

Begane grond

Hal - Voorkamer - Dressing - Badkamer - Slaapkamer - Wasplaats - kelder

Vanuit de hal krijgt men toegang tot de voorkamer, de kelder en de trap naar de eerste verdieping. De begane grond is voorzien van authentieke cementtegels, gelegd in een typisch ruitpatroon dat perfect past bij de historische charme van het pand.
De voorkamer is een polyvalente ruimte die naar wens kan worden ingericht, bijvoorbeeld als kantoor of hobbykamer. Dankzij de grote ramen geniet u van veel lichtinval en een fraai uitzicht op de voortuin en het begijnhof.

De master bedroom bevindt zich eveneens op de begane grond. Deze ruime slaapkamer beschikt over een grote dressing die volledig naar eigen smaak kan worden ingericht. Een groot raam zorgt hier voor aangenaam daglicht. Aansluitend ligt de moderne badkamer, uitgerust met een inloopdouche, praktische badkamerkasten en een hangtoilet.

Achteraan bevindt zich de wasplaats, voorzien van aansluitingen voor wasmachine en droogkast, evenals een porseleinen uitgietbak met warm en koud water. Alle meters zijn netjes samengebracht in een afsluitbare meterkast. Ook de centrale technieken – verwarmingsketel, elektriciteitskast en ventilatiesysteem – zijn overzichtelijk gegroepeerd in een afsluitbare wandkast.

Extra bergruimte vindt u op de zolder boven de wasplaats en slaapkamer, die bereikbaar is via een handige uitschuifbare trap.

De kelder betreed men via de hal. Deze is volledig gerestaureerd, droog en bruikbaar.

Eerste verdieping

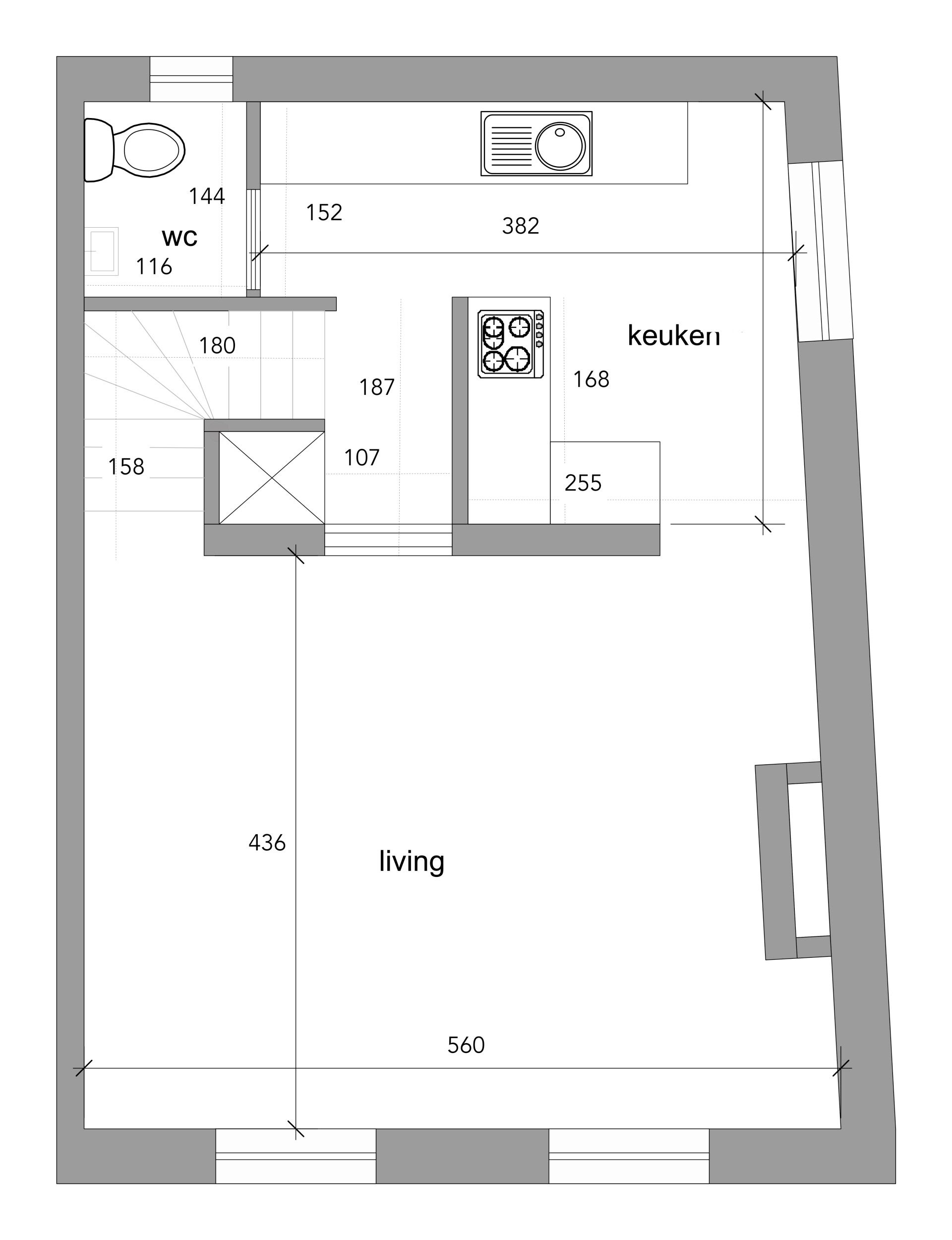
Overloop - Woonkamer - Keuken - Toilet

Op de overloop bevindt zich een praktische ingebouwde vestiairekast. Vanuit hier heeft u toegang tot zowel de keuken als de woonkamer.

De keuken is een maatwerkkeuken van Ixina, uitgerust met een vaatwasser, een elektrische kookplaat en een stijlvolle vrijstaande koel-vriescombinatie van het merk Smeg. De dimbare ledverlichting zorgt voor een aangename sfeer en functionaliteit.

De woonkamer ademt warmte en elegantie. Net zoals in de andere ruimtes is de vloer afgewerkt met eiken parket, afgewerkt in olie, wat zorgt voor een tijdloze uitstraling en duurzaam comfort. Ook hier zijn meerdere dimbare lichtpunten aanwezig. Vanuit de woonkamer leidt een vaste trap naar de tweede verdieping.

Voor extra comfort is er op deze verdieping een tweede toilet voorzien, uitgerust met een handenwasbakje.

Tweede verdieping

Overloop - Ingemaakte kasten - Slaapkamers

Op de tweede verdieping bevindt zich een ruime overloop met dakkapel, die voor extra licht en een gevoel van ruimte zorgt. Onder het dak zijn ingemaakte kasten met schuifdeuren voorzien, goed voor veel praktische opbergruimte. De vloeren zijn afgewerkt met parket en de originele dakconstructie is mooi zichtbaar, wat een authentiek en warm karakter geeft.

Er zijn twee slaapkamers die worden afgesloten met stijlvolle schuifdeuren in gelakte stalen kaders met veiligheidsglas. Dit zorgt voor een gezellige sfeer met veel daglicht en een ruimtelijk gevoel.

Tuin

De voortuin en hagen zijn onder beheer van Stad Turnhout en verzekeren een uniform en historisch getrouw zicht vanop de binnenplaats. Aanleg en onderhoud worden door hen verzorgd.

Via de wasplaats en de tuinpoort komt men in de stadstuin. De verharding is gemaakt met gebakken kleiklinkers. Afwatering is voorzien en er is een vorstvrije buitenkraan. Er is ruimte voor de verschillende vuilbakken en fietsen kunnen gestald worden.

De tuin is aangeplant met onder andere Viburnum, Klimhortensia, Waldsteinia en andere bloeiende struiken en bodembedekkers.